1
/
of
3
35.78 m2
1
1
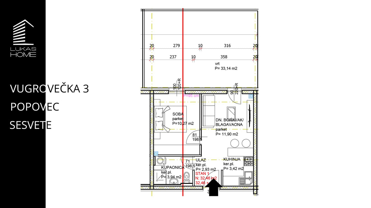
Opis Projekta
Stan se nalazi u prizemlju.
Ulaz (2,93 m²), kupaonica (3,94 m²), dnevnim boravak i blagovaonica (11,90 m²) iz kojeg se izlazi na vrt (33,14 *0.10/ 3.31 m2) i kuhinja (3,42m²)
Soba 1 (10,27 m²) i ukupna površina stana je (35,78 m² ) + parkirno mjesto.
Za više detalja o stanovima i cijenama kontaktirajte nas.
Lukas Home


