1
/
of
2
73,75 m2
2
1
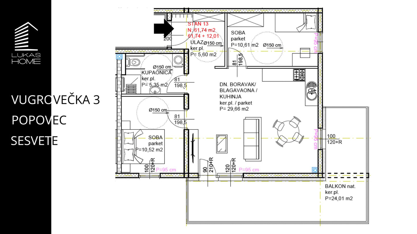
Opis Projekta
Stan se nalazi na prvom katu.
Ulaz (5,60 m²), kupaonica (5,35 m²), dnevnim boravak ,blagovaonica i kuhinja (29,66 m²) iz kojeg se izlazi na balkon (24,01 *0.50/ 12,01 m²)
Soba 1 (10,52 m²) Soba 2 (10,61 m²)i ukupna površina stana je (73,75 m²) + parkirno mjesto.
Za više detalja o stanovima i cijenama kontaktirajte nas.
Lukas Home

