1
/
of
3
36,04 m2
1
1
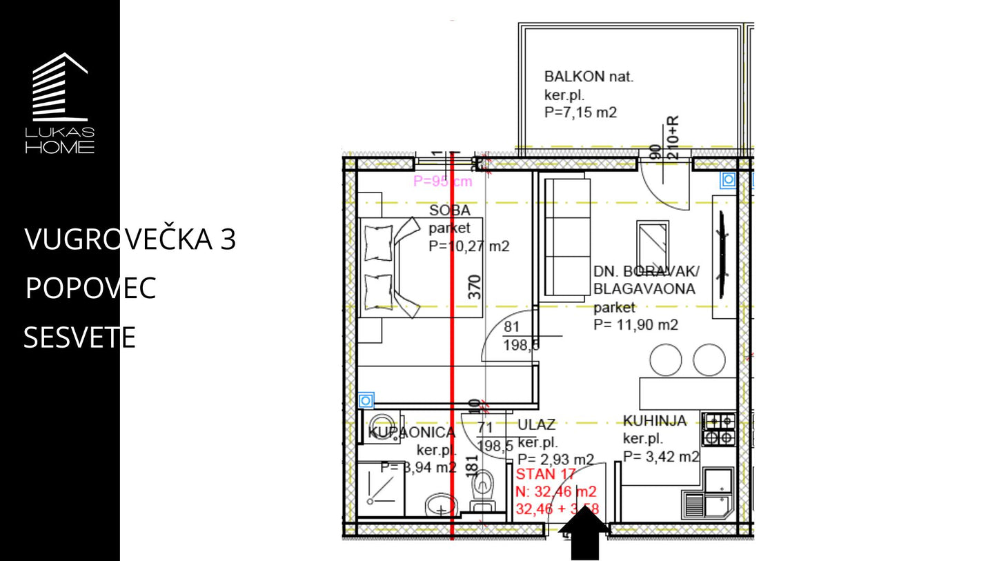
Opis Projekta
Stan se nalazi na drugom katu.
Ulaz (2,93 m²), kupaonica (3,94 m²), dnevnim boravak i blagovaonica (11,90 m²) iz kojeg se izlazi na balkon (7,15 *0.50/ 3,10 m2) i kuhinja (3,42m²)
Soba 1 (10,27 m²) i ukupna površina stana je (36,04 m²) + parkirno mjesto.
🛈 Dodatne informacije:
Svaki stan ima osigurano otvoreno parkirno mjesto ili garažno mjesto, koje se kupuje zasebno i nije uključeno u cijenu stana.
Za više detalja o stanovima i cijenama kontaktirajte nas.
Lukas Home


