1
/
of
2
67,58 m2
2
1
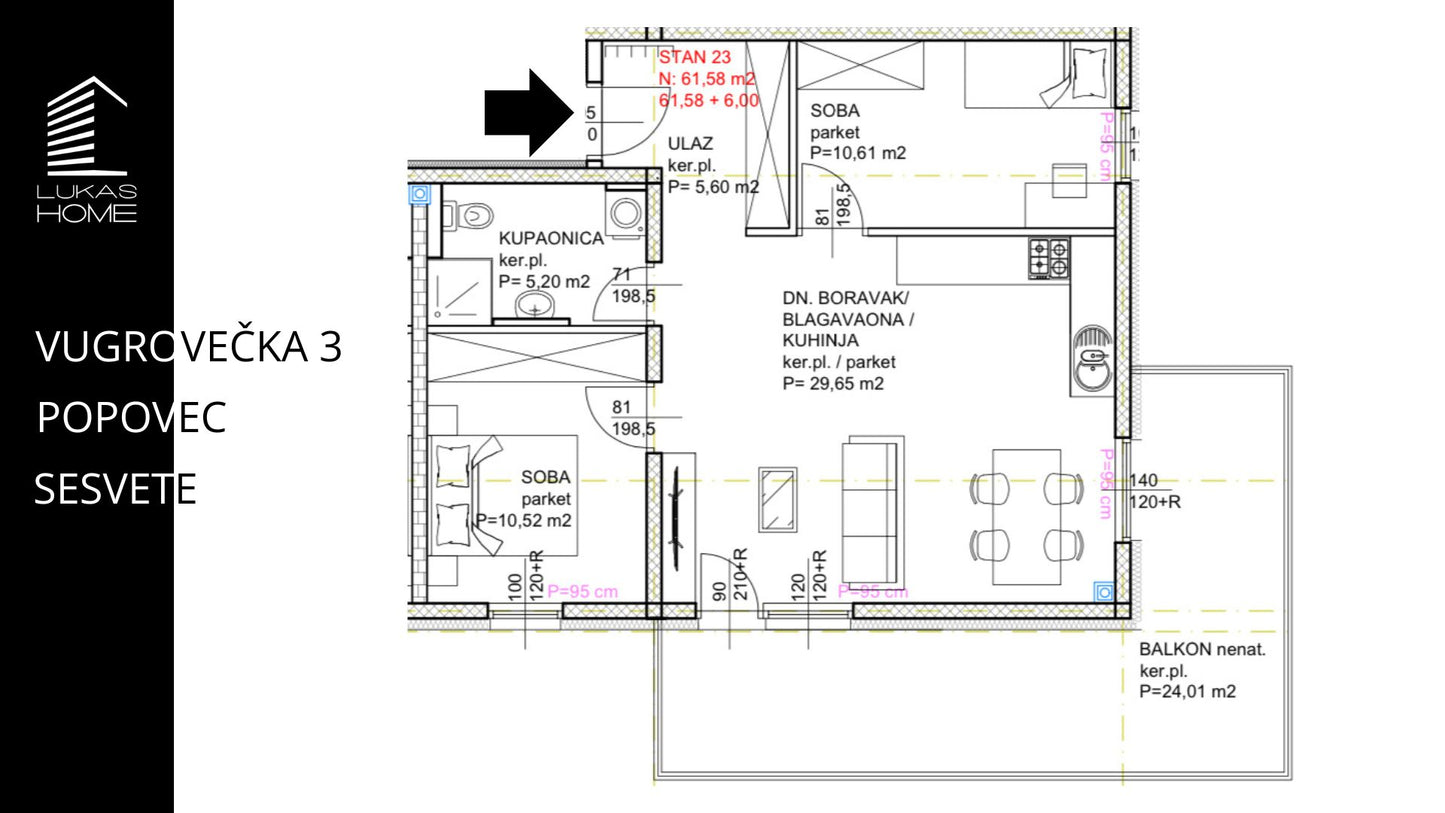
Opis Projekta
Stan se nalazi na prvom katu.
Ulaz (5,60 m²), kupaonica (5,20 m²), dnevnim boravak ,blagovaonica i kuhinja (29,65 m²) iz kojeg se izlazi na balkon (24,01 *0.25/ 6,00 m²)
Soba 1 (10,52 m²) Soba 2 (10,61 m²)i ukupna površina stana je (67,58 m²) + parkirno mjesto.
Za više detalja o stanovima i cijenama kontaktirajte nas.
Lukas Home

