1
/
of
3
71,61 m2
3
1
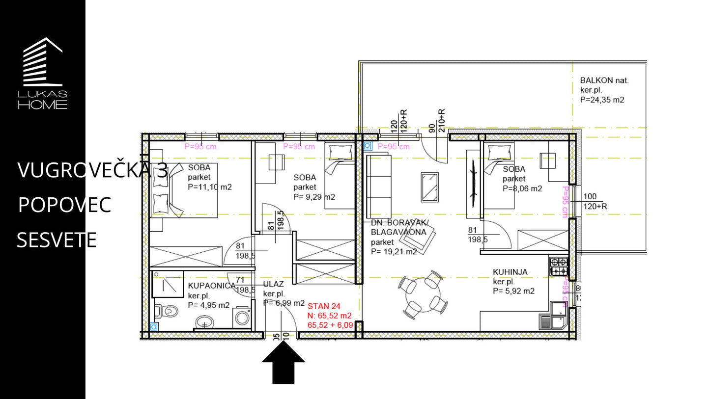
Opis Projekta
Stan se nalazi na drugom katu.
Ulaz (6,99 m²), kupaonica (4,95 m²), dnevnim boravak ,blagovaonica (19,21 m²) iz kojeg se izlazi na balkon (24,35 *0.25/ 6,09 m²) i kuhinja (5,92m²)
Soba 1 (11,10 m²) Soba 2 (9,29 m²) Soba 3 (8,06 m²)i ukupna površina stana je (71,61 m²) + parkirno mjesto.
Za više detalja o stanovima i cijenama kontaktirajte nas.
Lukas Home


