1
/
of
3
35,91 m2
1
1
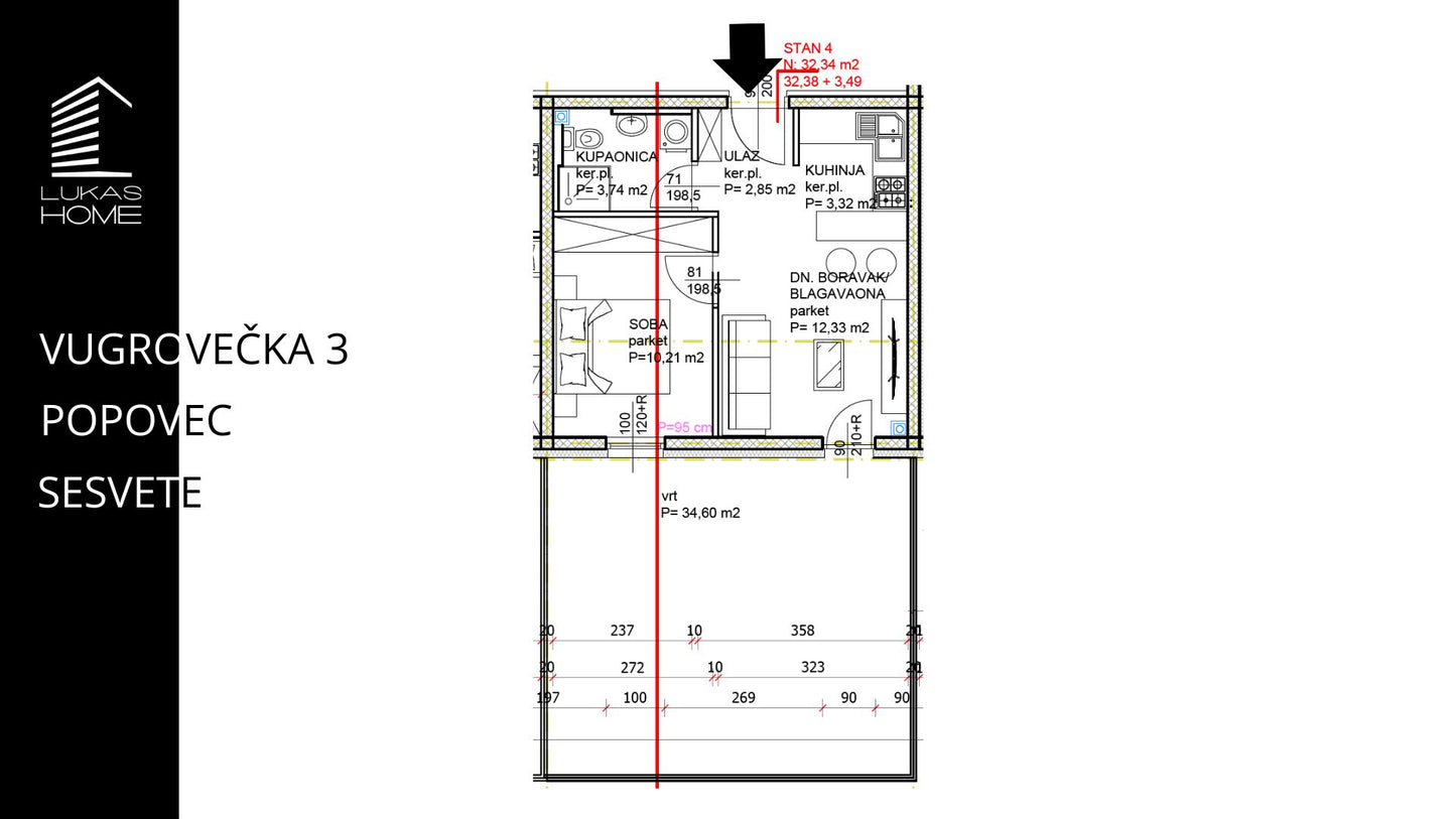
Opis Projekta
Stan se nalazi u prizemlju.
Ulaz (2,85 m²), kupaonica (3,74 m²), dnevnim boravak i blagovaonica (12,33 m²) iz kojeg se izlazi na vrt (34,60 *0.10/ 3,46 m2) i kuhinja (3,32m²)
Soba 1 (10,21 m²) i ukupna površina stana je (35,91 m²) + parkirno mjesto.
Za više detalja o stanovima i cijenama kontaktirajte nas.
Lukas Home


