1
/
of
3
47,38 m2
1
1
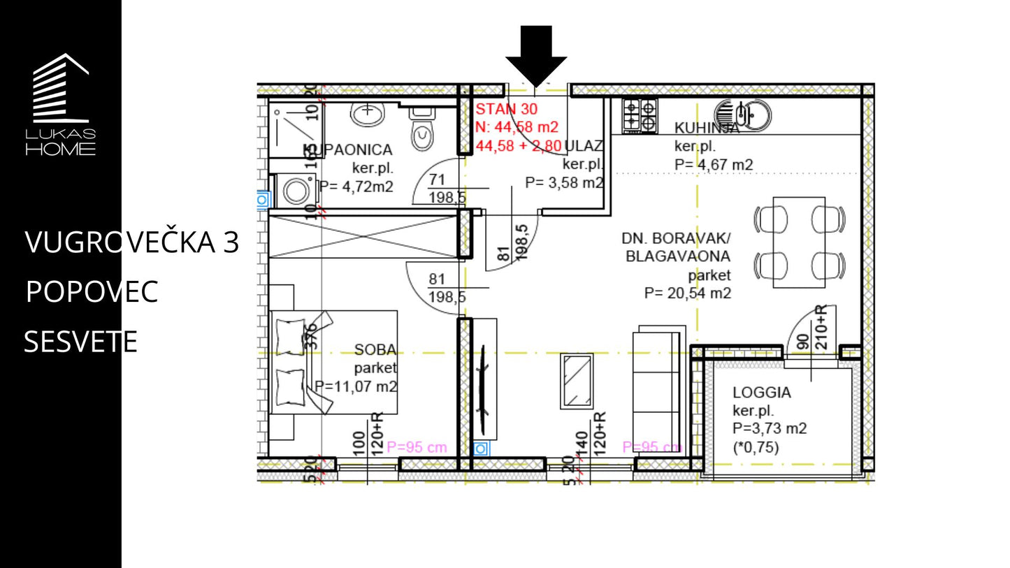
Opis Projekta
Stan se nalazi u potkrovlju.
Ulaz (3,58 m²), kupaonica (4,72 m²), dnevnim boravak i blagovaonica (20,54 m²) iz kojeg se izlazi na lođu (3,73 *0.75/ 2,80 m2) i kuhinja (4,67 m2)
Soba 1 (11,07 m²) i ukupna površina stana je (47,38 m²) + parkirno mjesto.
🛈 Dodatne informacije:
Svaki stan ima osigurano otvoreno parkirno mjesto ili garažno mjesto, koje se kupuje zasebno i nije uključeno u cijenu stana.
Za više detalja o stanovima i cijenama kontaktirajte nas.
Lukas Home


